EN

PL

The presented property is a detached, ground floor house in a green area near the Kampinos National Park with a 30-minute drive to Chopin and Modlin airports and the planned Central Communication Port (CPK).

 

PROPERTY PARAMETERS

The property is located on a plot of 707 m2, surrounded by greenery and single-family houses consistent in architectural style.

 

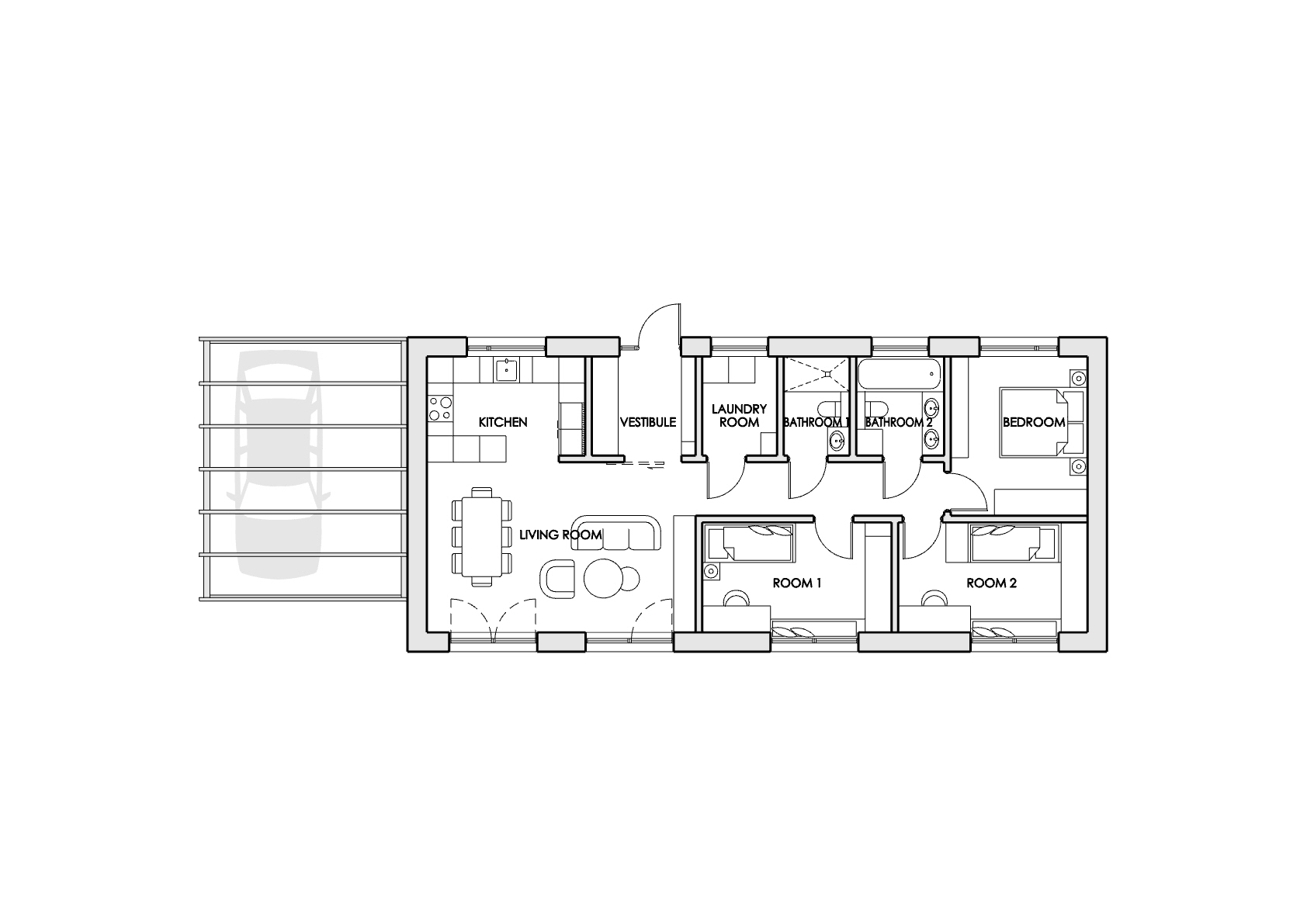
The house has a usable area of 90 m2 and consists of a spacious living room with a view towards the garden, an open kitchen and dining room, 3 bedrooms, a main bathroom with a bathtub, a guest bathroom with a shower, a boiler room and a vestibule.

 

The living area of the property and the garden are south facing, so the house is beautifully lit.

In front of the house there is a driveway for two cars and a carport next to it.

 

CONNECTIVITY AND AREA

More single-family houses are being built along the street where the property is located. A unique feature is the existing and constantly growing local community.

 

The house is a 10-minute bike ride to the Kampinos National Park. In addition, within a 2-minute drive there are numerous shops, a post office, a church and a kindergarten. The bus stop is located on the main road. Warsaw can be reached by car in 30 minutes outside rush hour.

Alternatively, by car (10 minutes) or by bike (23 minutes) you can reach the Płochocin railway station, where trains run regularly to Warsaw Central in 35 minutes.

 

The property is perfect for a couple with children looking for

a house with a garden in a green, quiet, safe area with clean air.

 

The offer is also ideal for those who work from home or travel a lot and will appreciate the advantages of easy access to airports.

MAKE.IT.REAL

Your e-mail:
Message:
Send
Send
Message has been sent!
Please fill in all fields.

FK Property sp. z o.o.

+48 730 709 372

info@fkproperty.onmicrosoft.com

Al. Jana Pawła II 27
00-867 Warszawa

Al. Jana Pawła II 27
00-867 Warszawa

info@fkproperty.onmicrosoft.com

+48 730 709 372

FK Property sp. z o.o.